100) ? false : true; navIsShown = (window.pageYOffset > viewportHeight) ? true : false; triggerTransitions = window.pageYOffset > (viewportHeight / 2) ? true : false; if (navIsOpen && !atTop && !navIsShown) navIsOpen = false; ">
Toggle Nav
Details
Images
Videos
Floor Plans
Map
Scroll to Content
62 chelwood
CA$699,000
4 Bedrooms
2 Bathrooms
Details
CA$699,000
4 Bedrooms
2 Bathrooms
4 Parking Spots
MLS: E12385655
Images
Show more
Slideshow
Photo Grid
Hide
Previous
Next
Videos
Content Coming Soon
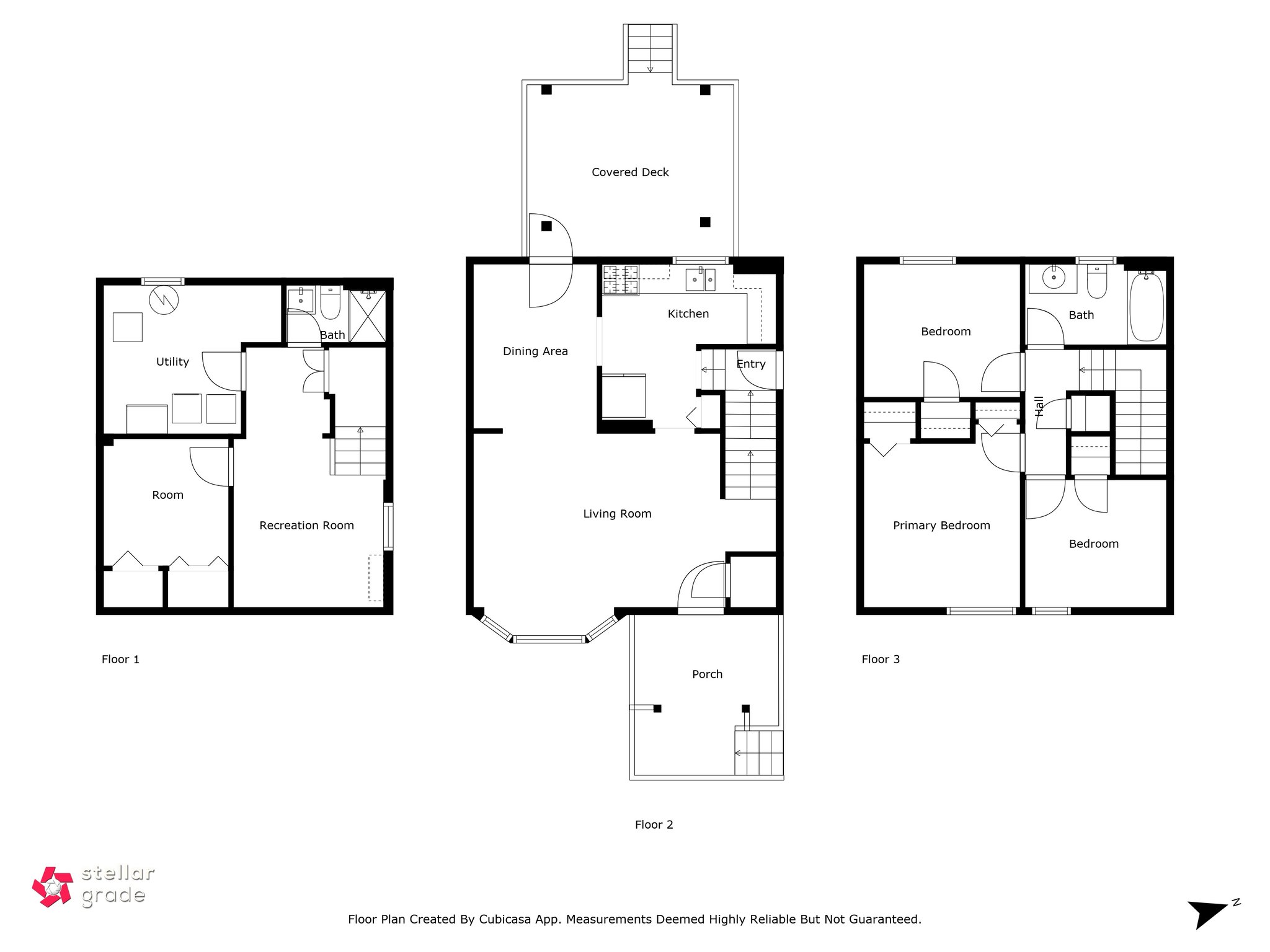
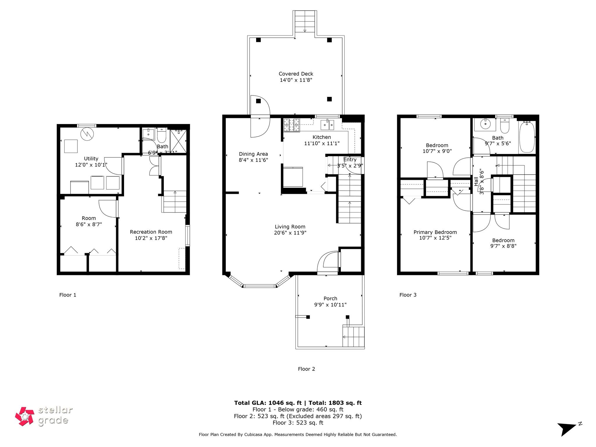
Floor Plans
Slideshow
Photo Grid
Hide
Previous
Next